Customizable Pre-Priced Home Designs Available For Sale
We are not a modular or pre-fab home company, we site build high quality made to last homes!
At Allegheny Custom Homes, we offer pre-designed, pre-priced home plans that eliminate the stress and expense of starting from scratch. Unlike cheap, factory built double wide and modular type homes, our houses are built to endure, ensuring they remain a lasting investment for generations.
With an array of customizable options, customers can select their preferred flooring, paint colors, trim, roofing and siding colors, plumbing and electrical fixtures, etc. creating a unique home tailored to their style. By choosing our customizable plans, homeowners can achieve quality and individuality without breaking the bank. Why settle for less when you can invest in a beautiful, durable home that reflects your vision?
Check out some of our favorite designs below!
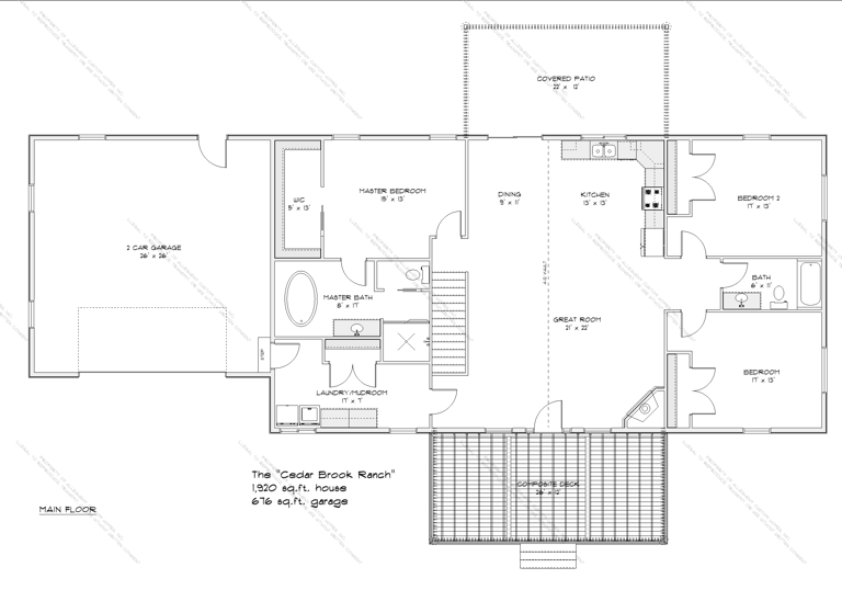
The "Cedar Brook Ranch"
1,920 sq.ft.
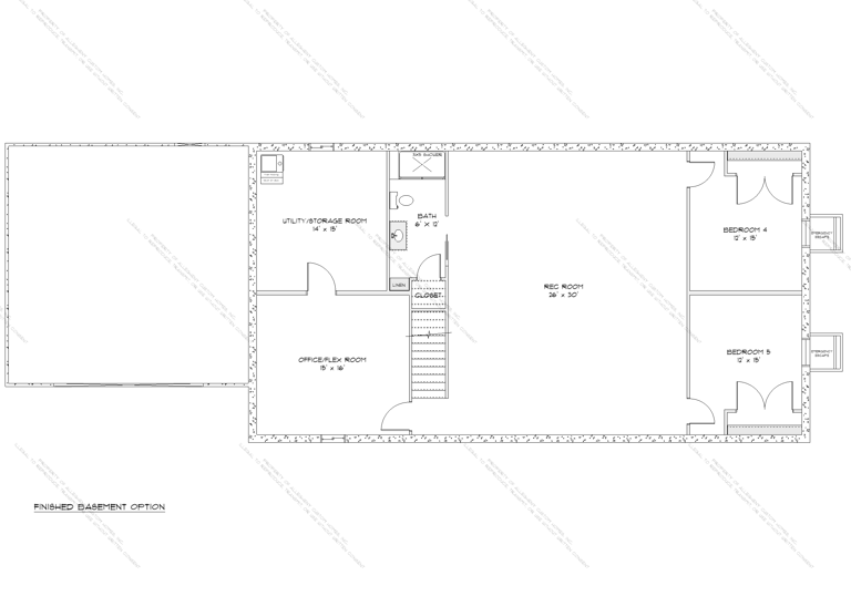
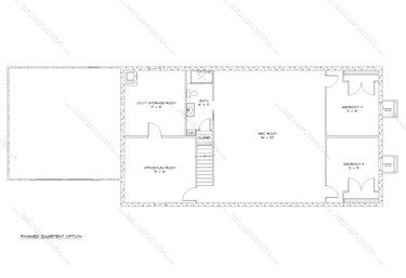
This sprawling ranch design features an open concept center with plenty of room for entertaining, a massive great room with gas fireplace, a generously proportioned master suite, two additional bedrooms for the kids on the opposite side of the house for privacy with an adjoining full bath that doubles as a guest bath, a combination mud room/laundry with garage entrance, a maintenance free covered composite front porch as well as a covered concrete patio at the rear that both provide ample all weather space for outdoor living and entertaining. This plan also comes with a finished lower level option that adds two additional bedrooms, another full bath, a flex room, a gigantic rec room, and still leaves space for a large utility/storage area! Total interior living space with the finished basement option is 3,653 sq.ft.
MAIN FLOOR


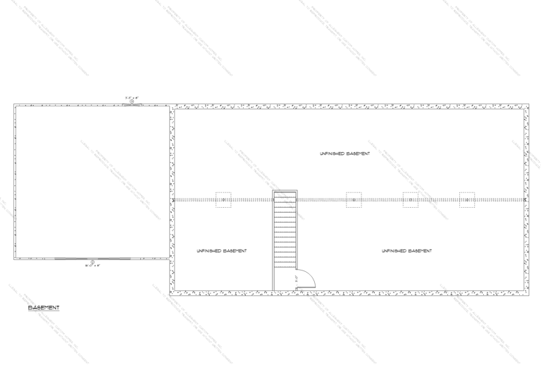
STANDARD BASEMENT
FINISHED BASEMENT OPTION








